896 Wavertree Road, Forest Hills NV, North Vancouver
Sold

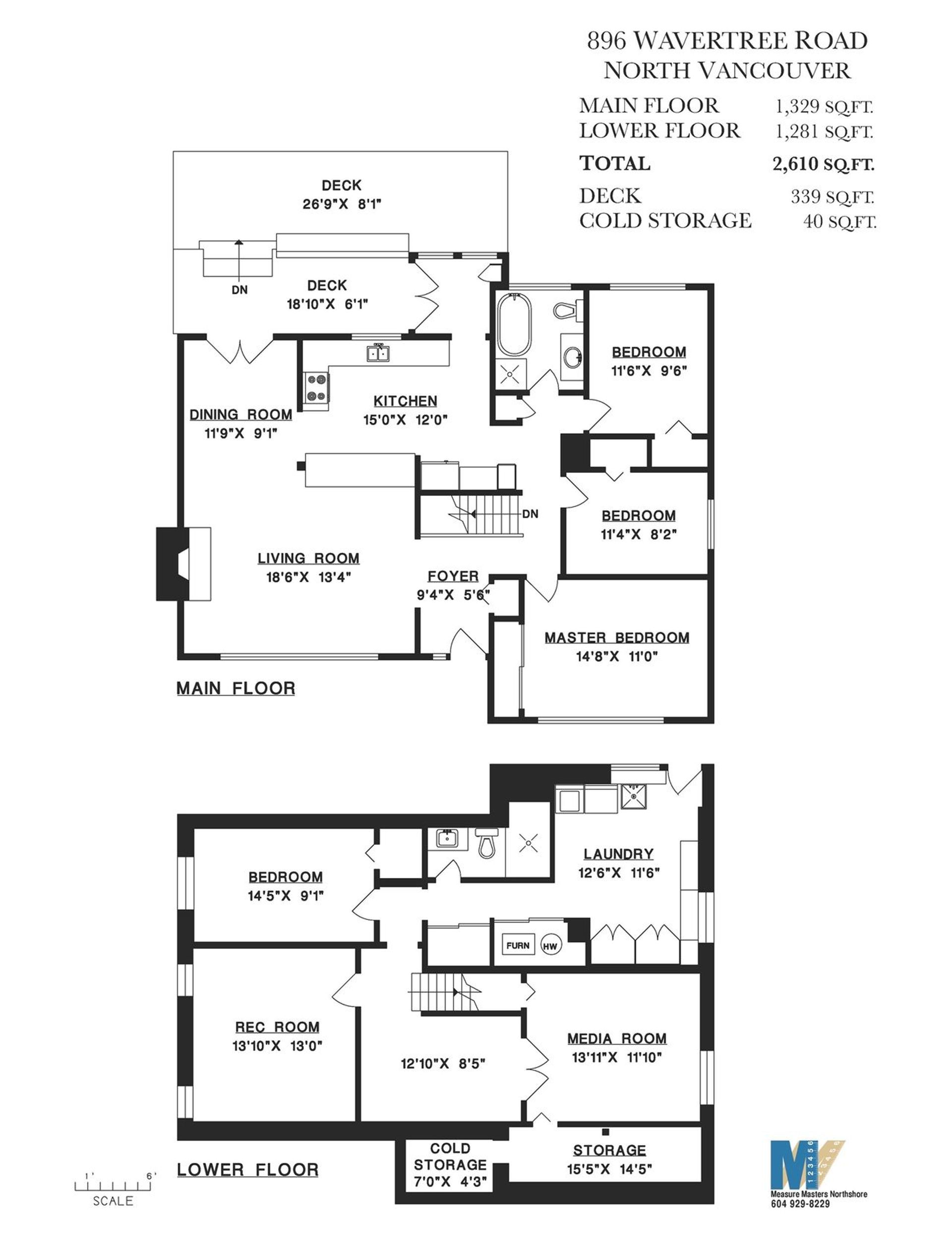
896 Wavertree Road

Forest Hills NV, North Vancouver

$2,695,000

5 Beds
2 Baths
2,610 sqft

About this House in Forest Hills NV, North Vancouver

Just in time for summer, this entertainer’s dream home features a stunning, sun drenched, backyard oasis with a fantastic salt water pool. Situated in sought after Forest Hills, the home boasts over 2,600 square feet on 2 levels, 5 bedrooms and 2 bathrooms. The main floor offers open concept living, a renovated gourmet kitchen with bar seating, 3 bedrooms, gas fireplace and connects seamlessly through French doors to an incredible backyard. Downstairs are 2 additional bedrooms, rec room, media room, fantastic mud room, renovated bathroom and tons of storage. Sun drenched, 70’ x 115 lot with mountain views and in the Canyon Heights Elementary and Handsworth Secondary School catchments. EV charger and many additional updates. Welcome Home.

Features

  • MLS®: R2702822
  • Type: House
  • Bedrooms: 5
  • Bathrooms: 2
  • Square Feet: 2,610 sqft
  • Lot Size: 8,050 sqft
  • Frontage: 70.00 ft
  • Depth: 115.00 ft
  • Full Baths: 2
  • Half Baths: 0
  • Taxes: $7,965.99
  • Basement: Fully Finished,Separate Entry
  • Storeys: 2
  • Year Built: 1953
  • Style: Rancher/Bungalow w/Bsmt.

Contact our team for more information

Vanessa Miller 778.558.6377

Sharlene Wark 604.551.7427